Die Immobilie verfügt über ein Volumen von 1'512 m3 inkl. Garage und über sehr viel Ausbaupotential.
Die Immobilie kann sowohl als Erstwohnsitz wie auch als Zweitwohnsitz genutzt werden.

Haben Sie noch Fragen? Zögern Sie nicht, Wir freuen uns auf Ihren Anruf. Gerne zeigen wir Ihnen die Liegenschaft unverbindlich vor Ort.

Weitere Objekte finden Sie unter: www.LifestyleHomes.ch " />

CHALET IN ZERNEZ

  • Erdgeschoss
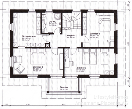
  • Obergeschoss
  • Dachgeschoss
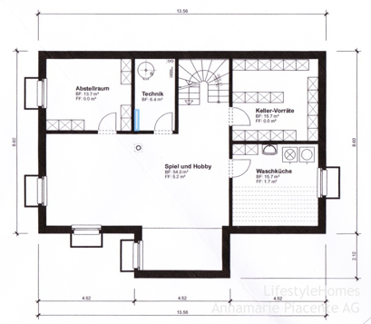
  • Untergeschoss

<< Zurück